川中島の住宅

大きな庇と気積の奥行き

長野市の郊外に建つ一戸建ての住宅である。敷地は古くから人の営みがあり、果樹栽培で知られる地域の古い集落の一角にあり、近隣には規模の大きな葡萄畑も残されている。
南北に細長い敷地は、東側と南側を規模の大きな農家に、西側を分譲によって建てられたばかりの民家に、それぞれ接している。農家には築100年が経とうかという蔵と、それより後に建てられたとみられる母屋があり、敷地は築地塀で囲われている。蔵・母屋・塀にはそれぞれ瓦屋根が掛けられ、共通して用いられた漆喰や板材が、少しずつ異なる時代に建てられながらも時を繋ぐ風景を形作っている。そうした場所に建てられる新参者の住宅は、どのような姿であるべきだろう。

私たちの提案した住宅は、中央に細長く天井の高い2層の部分を持ち、その周囲を平屋が囲んでいる。屋根と2階の外壁は、白銀色に鈍く光る長尺の金属板で包んだ。1階に比べて小さな2階が屋根の上に載り、全体は「帽子」をかぶったような断面と外観となっている。周囲の家と異なり屋根は瓦ではないが、農業用建屋、あるいは納屋のように、必要に応じて形づくられた建物が備える即物的な美しさを、この住宅にも持たせたいと考えた。
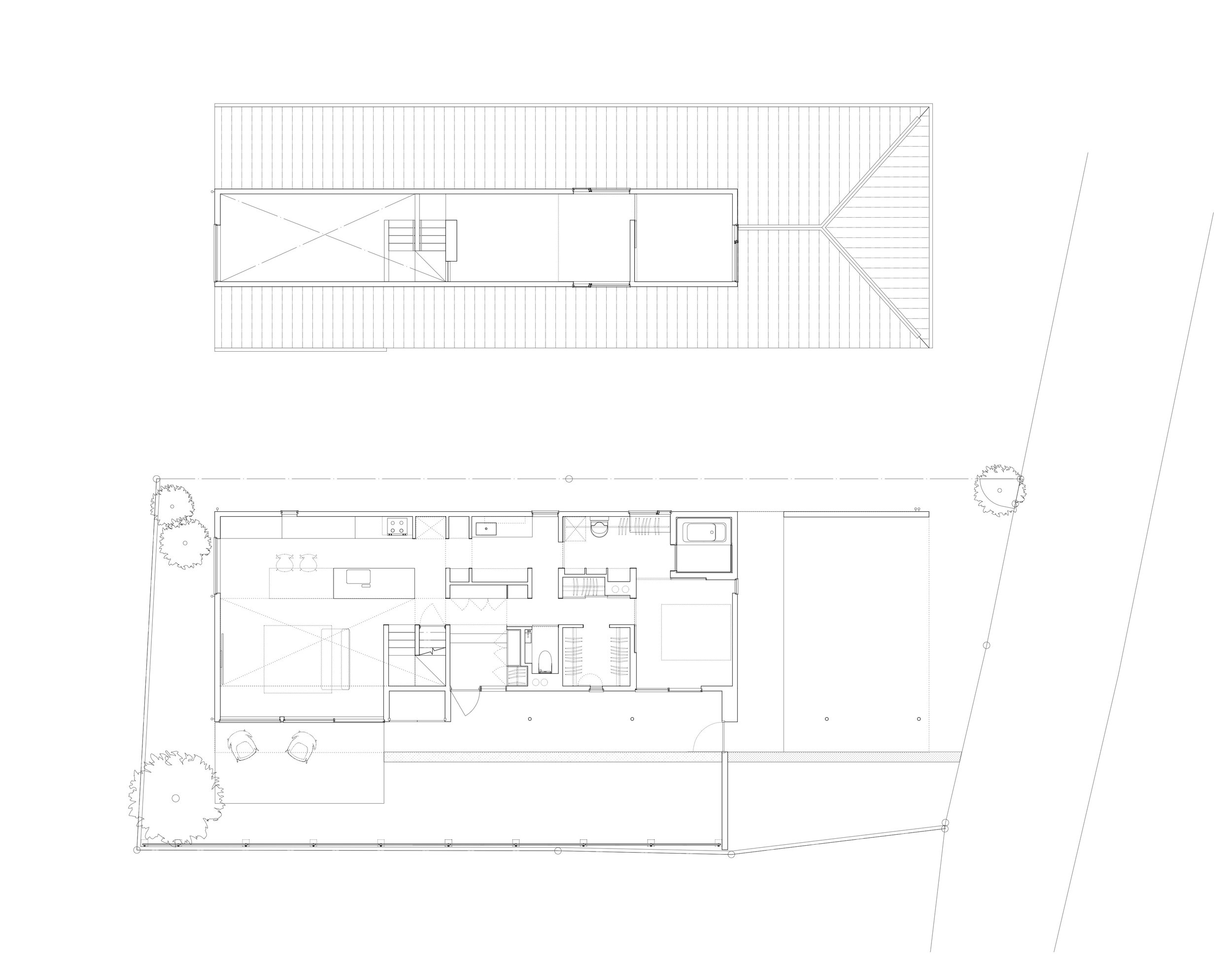
建築主夫婦とまだ小さな子供たちの生活は、基本的に1階で満たされるようになっている。室内の東側と西側にそれぞれ、全長15mにわたって南北に貫く動線が設けられており、一方は来客も含めた日常の通路、もう一方はキッチンからユーティリティ、ランドリーを経て浴室に至る家事動線となっている。道路に面した「帽子の鍔」にあたる部分は、2台の車と自転車を置くための大きな庇で、道路に向かって大きく開かれ、かつ、その奥行きによって生活部分と道路との間に十分な心理的距離感を生み出している。庇の奥の門扉を開けると、さらに奥の玄関に向かい、庇に守られた細長い路地が家族と来客を導く。
2階に設けられているのは将来の子供部屋だが、これらはこの家の中で眺めの良い「大きな屋根裏部屋」である。居間の吹き抜けと空間的につながり、壁と天井を合板で仕上げた天井高さ2.85mの「屋根裏部屋」は、寝室というより多目的の広間である。子供たちが巣立てばしばらくは物置になり、やがては家の中の「離れ」のように書斎として使われるだろう。つまりこの家は現在の機能だけによらず、伝統的な民家がそうであったように、少なくとも数十年先を見越して、その佇まいや室内のあり方が定められている。
中央に高さ5.5mの吹き抜けを持つ居間は、屋根裏とともにこの家の大きな気積を生み出し、隣接する農家の敷地に立つ欅の巨木を正面に臨むことができる。内部の大きな気積と、庇の下の半屋外の気積は互いに呼応し、建物全体が深い器のような存在となる。そもそも、この住宅の南北に細長い配置は、樹齢100年を超えるこの欅を眺めながら生活したいという建築主の希望に応えたものである。隣家の蔵や欅の木がこの住宅のあり方を決めたように、この家もまた100年後に欅の役目を果たすことができるだろうか。そのように考えながら設計を進めた。


名称:川中島の住宅
施主:個人
用途:戸建住宅
所在地:長野県
面積:147.47m2
竣工:2025年12月
基本・実施設計・監理:カスヤアーキテクツオフィス(粕谷淳司・粕谷奈緒子)
設計・監理協力:ムカバトリ(村田裕紀)
構造設計:長坂設計工舎(長坂健太郎)
照明デザイン:ソノベデザインオフィス(園部竜太)
施工:株式会社鹿熊組(明事真也・中澤勝一)
撮影:吉村昌也 (Copist & the Brushworks)、粕谷淳司

A Deep Eave and Layered Spatial Volume

This single-family house stands on the outskirts of Nagano City, on a site that has long been shaped by human activity. The property lies within an old settlement known for fruit cultivation, with large vineyards still remaining nearby.

The long, narrow plot runs north–south. To the east and south it adjoins a large traditional farmhouse, while to the west it borders newly built subdivided houses. The farmhouse includes a storehouse approaching a century in age and a later main residence, all enclosed by a plastered earthen wall. The storehouse, main house, and wall are unified by tiled roofs, and the shared use of plaster and timber—though constructed in different eras—creates a continuous landscape that bridges time. What, then, should be the form of a new house inserted into such a setting?

Our proposal centers on a tall, narrow two-story volume at the core, surrounded by single-story spaces. The roof and second-floor exterior walls are wrapped in long sheets of dull silver metal. A smaller upper volume sits atop the roof, giving the house a sectional profile and appearance reminiscent of a “hat.” While the roof differs from the tiled roofs of neighboring buildings, we sought to imbue the house with the matter-of-fact beauty found in agricultural structures or barns—buildings shaped simply by necessity.

Daily life for the client couple and their young children is primarily organized on the ground floor. Two linear circulation paths run north–south along the east and west sides of the interior, each extending approximately 15 meters. One serves as the main everyday route for family and guests alike; the other forms a domestic service route connecting the kitchen to the utility room, laundry, and bathroom. Facing the street, the “brim of the hat” becomes a large eave that shelters two cars and bicycles. It opens generously toward the road, while its depth creates a comfortable psychological distance between street and living spaces. Passing through the gate beneath the eave, family members and visitors proceed along a slender, sheltered approach toward the entrance.

The second floor contains future children’s rooms—spaces that function as a large attic with views, the most elevated rooms in the house. Spatially connected to the living room void below, these attic rooms have walls and ceilings finished in plywood and a ceiling height of 2.85 meters. More like a multipurpose hall than conventional bedrooms, they may become storage once the children leave home, and eventually serve as a study—like a detached retreat within the house. In this sense, the dwelling is not defined solely by present needs. Like traditional vernacular houses, it is conceived with decades ahead in mind, shaping both its presence and its interior life accordingly.

The living room, with its 5.5-meter-high void at the center of the house, together with the attic above, generates a generous spatial volume and frames a majestic zelkova tree on the neighboring farmhouse property. The expansive interior volume resonates with the semi-outdoor volume beneath the deep eaves, transforming the entire building into something like a deep vessel. The elongated north–south configuration itself responds to the client’s wish to live while gazing upon this century-old tree. Just as the neighboring storehouse and zelkova shaped this house, we wondered whether this home might, in turn, come to play a similar role a hundred years from now. With that thought in mind, we advanced the design.


Project name: House in Kawanaka-jima
Client: Personal
Project site: Nagano, Japan
Function: Private House
Size: 147.47m2
Preliminary Design:Atsushi+Naoko Kasuya (KAO)
Design Execution : Atsushi+Naoko Kasuya (KAO)
Supervision : Atsushi+Naoko Kasuya (KAO)
Structural Design:  Ken Nagasaka (Ken Nagasaka Engineering Network)
Lighting Design:Ryuta Sonobe(Sonobe Design)
Contractor: Kakumagumi Co., Ltd.
Photo: Masaya Yoshimura (Copist & the Brushworks), Atsushi Kasuya